Choose Gabion Pros for long lasting, high quality Gabions and Geo-Tex Materials
- HOME
- ABOUT US
- PRODUCTS- PRO-TEC WELDED GABIONS
- PRO-TEC SPECIFICATIONS
- PRO-TEC INSTALLATION
- PRO-FLEX GABIONS
- STAINLESS STEEL GABIONS
- MARINE GABIONS-SEA WALLS
- ROCK FALL NETTING
- SACK GABIONS
- CUSTOM FENCES
- RENO MATTRESSES
- TOOLS & ACCESSORIES
- GABION WIRE FINISHES
- HESCO FLOOD BARRIERS
- CUSTOM FRAMED GABIONS
- WELDED WIRE MESH PANELS
- GLASS ROCKS
- SOIL COMPACTION EQUIPMENT
- DIY GABION WALLS
 
- APPLICATIONS- APPLICATIONS.
- SLOPE STABILIZATION
- GABION RETAINING WALLS
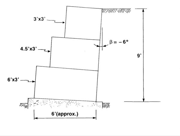
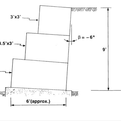
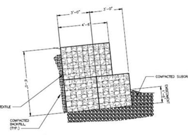
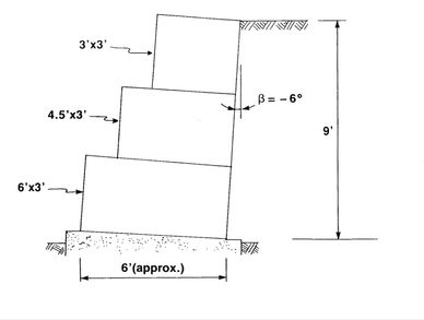
- MSE RETAINING WALLS
- EROSION CONTROL
- GABION CHANNEL LINING
- RIVER BANK PROTECTION
- LANDSCAPING GABIONS
- ARCHITECTURAL WALLS
- NOISE BARRIER WALLS
- PREFILLED GABIONS
- WALL VENEERS
- FLOOD PROTECTION
- CUSTOM GABION BENCHES
- CHECK DAMS
- RAISED GABION PLANTERS
- HEAD WALLS - OUTFLOW
 
- CONTACT US
- GALLERY




























